Ref. 002262
Aldosa Village és un nou concepte residencial que destaca pel seu disseny i innovació.
És un conjunt residencial amb una ubicació privilegiada, al lloc amb més sol i millors vistes entre l’Aldosa i Anyós, en un entorn únic que permet gaudir de la natura i la tranquil·litat.
És aquí on hem construït 14 cases adossades, 2 dúplex amb jardí i 1 magnífic àtic, tot sota els estàndards de la sostenibilitat i l’eficiència energètica.
Probablement és el conjunt residencial que gaudeix de més hores de sol del Principat.
La Casa 9 consta d’una superfície total de 561,95m2 que es distribueixen en:
- Planta 0 amb aparcament de 149m2, capacitat per 5 vehicles, 2 sales d’instal·lacions i safareig.
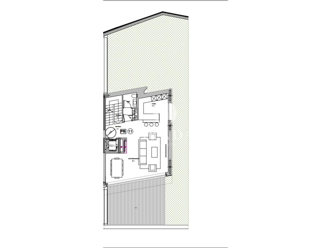
- Planta 1 totalment oberta a l’exterior amb gran saló menjador amb llar de foc, cuina oberta amb illa central, lavabo, terrassa i jardí de 162,73m2.
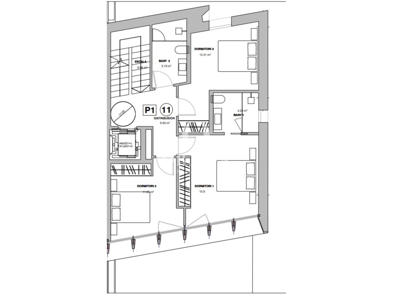
- Planta 2 amb 3 dormitoris dobles (1 suite) i 2 banys complets.
- Planta 3 amb la suite principal.
Entrega prevista durant el primer trimestre de 2026.
Aldosa Village és un nou concepte residencial que destaca pel seu disseny i innovació.
És un conjunt residencial amb una ubicació privilegiada, al lloc amb més sol i millors vistes entre l’Aldosa i Anyós, en u...
Aldosa Village és un nou concepte residencial que destaca pel seu disseny i innovació.
És un conjunt residencial amb una ubicació privilegiada, al lloc amb més sol i millors vistes entre l’Aldosa i Anyós, en un entorn únic que permet gaudir de la natura i la tranquil·litat.
És aquí on hem construït 14 cases adossades, 2 dúplex amb jardí i 1 magnífic àtic, tot sota els estàndards de la sostenibilitat i l’eficiència energètica.
Probablement és el conjunt residencial que gaudeix de més hores de sol del Principat.
La Casa 9 consta d’una superfície total de 561,95m2 que es distribueixen en:
- Planta 0 amb aparcament de 149m2, capacitat per 5 vehicles, 2 sales d’instal·lacions i safareig.
- Planta 1 totalment oberta a l’exterior amb gran saló menjador amb llar de foc, cuina oberta amb illa central, lavabo, terrassa i jardí de 162,73m2.
- Planta 2 amb 3 dormitoris dobles (1 suite) i 2 banys complets.
- Planta 3 amb la suite principal.
Entrega prevista durant el primer trimestre de 2026.
Llegir més
|
Pàrquing |
|
|
Accepten mascota |
|
|
Moblada |
|
|
Jardí |
|
|
Calefacció |
|
|
Aire condicionat |
|
|
Terrassa |
|
|
Superfície útil |
506 m2
|